擬訂新北市中和區信和段1182地號等40筆土地 都市更新事業計畫案
公告事項
View the embedded image gallery online at:
https://jiaruen.imtranslationweb.com/index.php/cooperate/item/578#sigProIdd313782c3b
https://jiaruen.imtranslationweb.com/index.php/cooperate/item/578#sigProIdd313782c3b
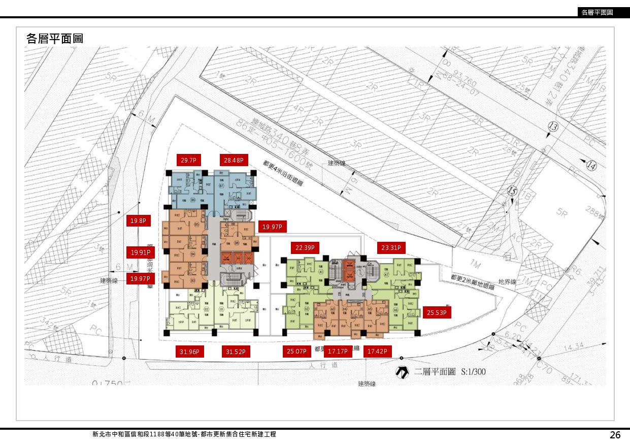
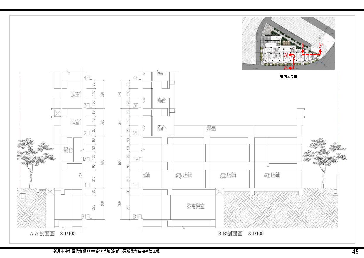
新北市中和區信和段都市更新公聽會簡報(112/5/26)
View the embedded image gallery online at:
https://jiaruen.imtranslationweb.com/index.php/cooperate/item/578#sigProId7ad6f1e0c6
https://jiaruen.imtranslationweb.com/index.php/cooperate/item/578#sigProId7ad6f1e0c6
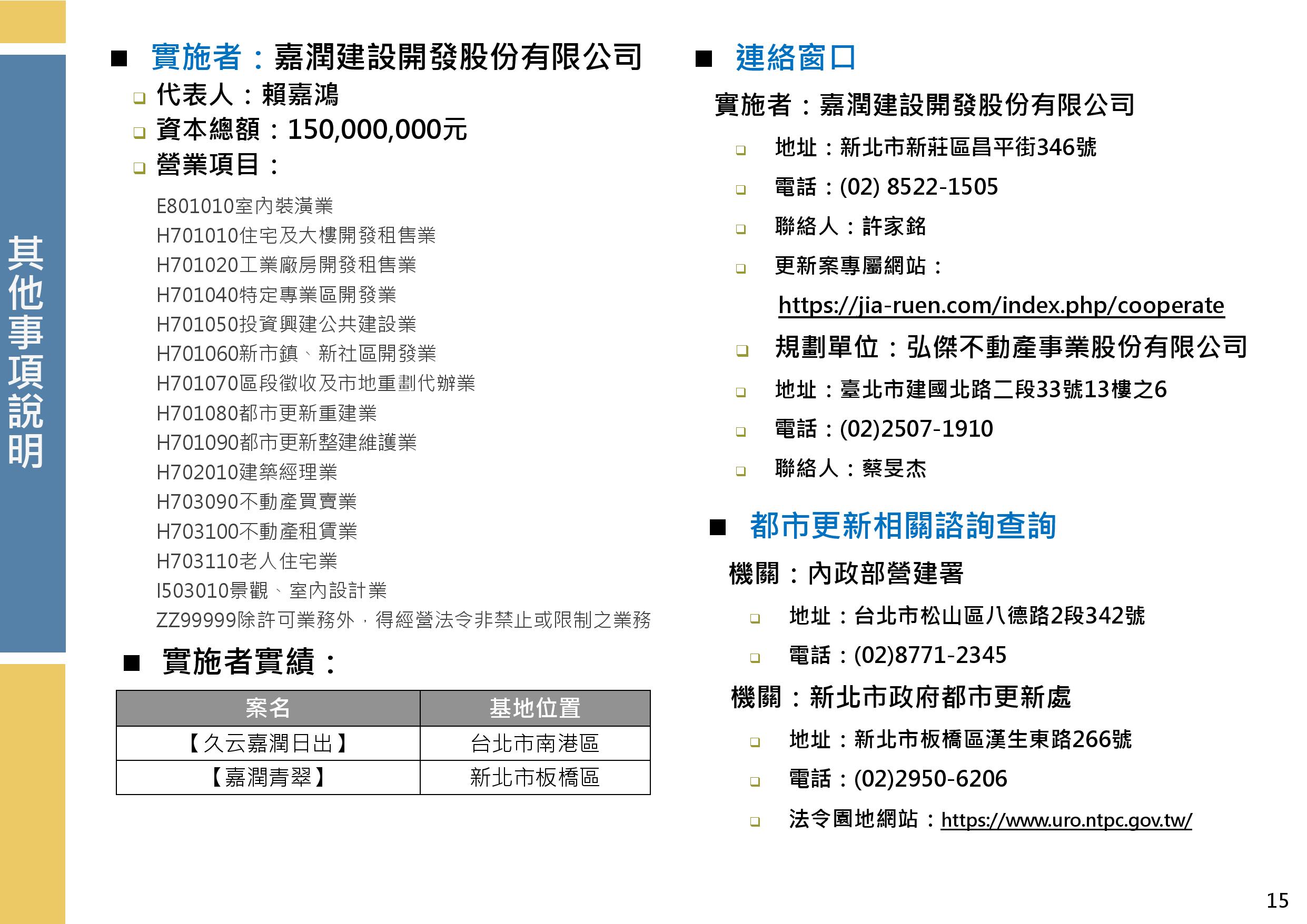
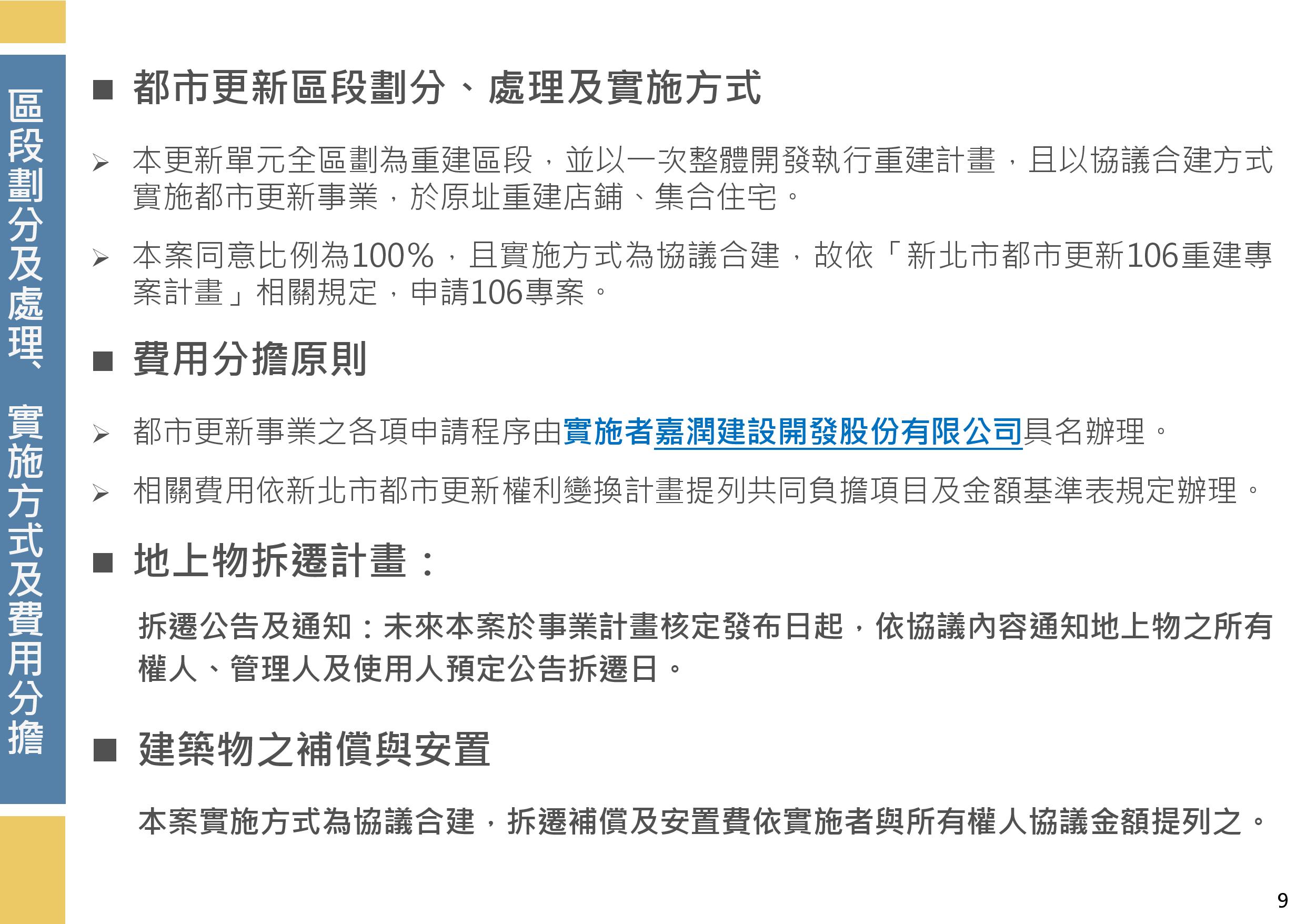
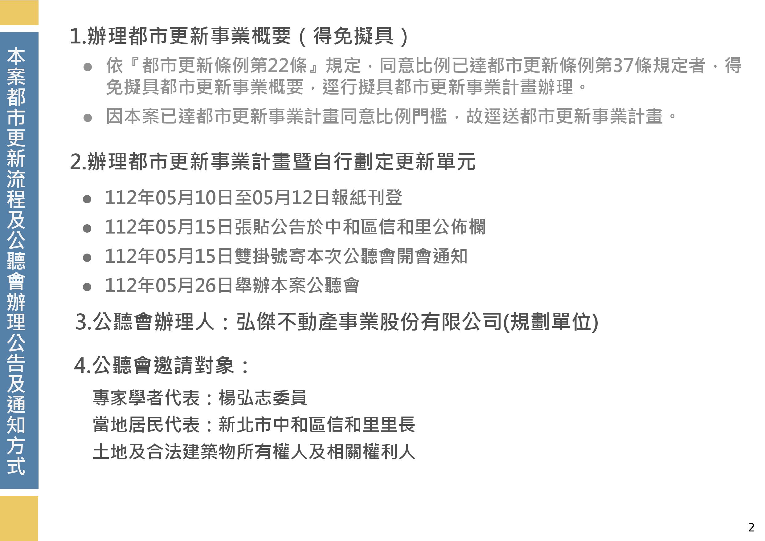
新北市中和區信和段公辦公聽會簡報(112/9/18)
活動花絮
View the embedded image gallery online at:
https://jiaruen.imtranslationweb.com/index.php/cooperate/item/578#sigProId930943039d
https://jiaruen.imtranslationweb.com/index.php/cooperate/item/578#sigProId930943039d
中和區信和段區域
View the embedded image gallery online at:
https://jiaruen.imtranslationweb.com/index.php/cooperate/item/578#sigProId8394a7e34f
https://jiaruen.imtranslationweb.com/index.php/cooperate/item/578#sigProId8394a7e34f
事業計畫公聽會(自辦)
View the embedded image gallery online at:
https://jiaruen.imtranslationweb.com/index.php/cooperate/item/578#sigProIda9307d1c5d
https://jiaruen.imtranslationweb.com/index.php/cooperate/item/578#sigProIda9307d1c5d
